
| 3106四层欧式带地下室农村别墅设计图纸挑空 | |
| 图纸价格: | ¥案例展示 |
| 图纸编号: | AZ3106 |
| 结构形式: | 框架 |
| 房屋层数: | 四层别墅设计图 |
| 支付方式: | 货到付款 | 在线支付 | 汇款转账 |
| 请您在下订单前与在线客服确认配送范围。 您在本站订购的图纸,我们客服人员会电话与您联系确认图纸编号、收货信息等, 感谢您对本站的关注,祝您网上购物愉快! |
|
注:图纸为长沙安筑建筑科技有限公司设计,版权所有,受法律保护。图纸设计依照国家建筑行业标准设计,其结构受力安全执行建筑设计国标强制性标准,图纸价格为A3纸质档1份。
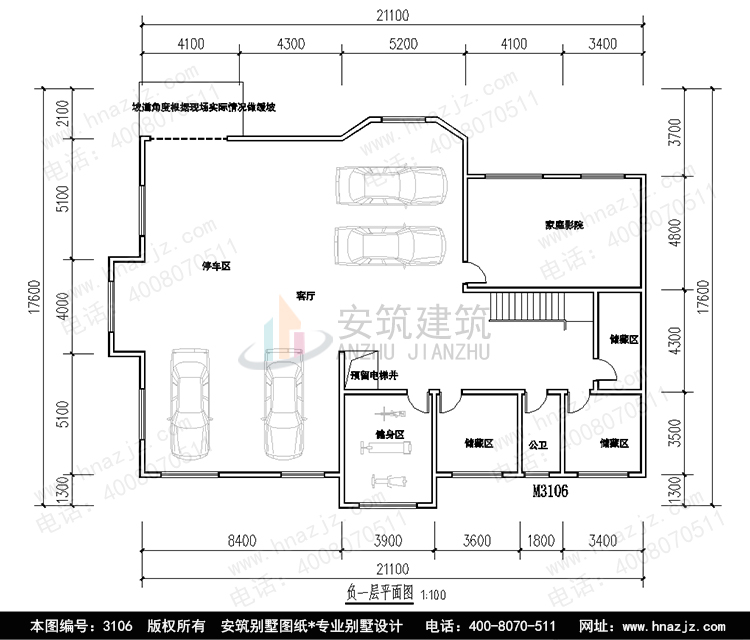
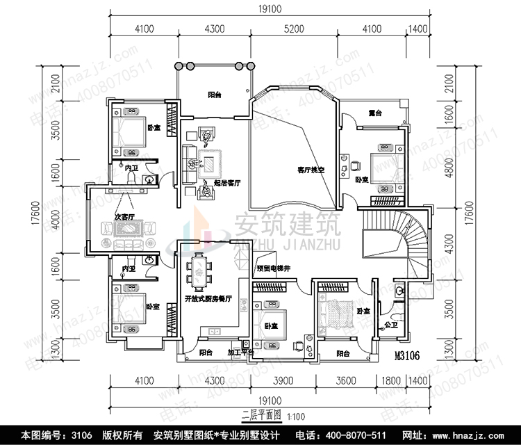
| 图纸属性 | |||
| 编号: 3106 | 层数: 四层 | 结构形式: 框架结构 | 主体造价: 50万以上 |
| 开间: 21.1 | 进深: 17.6 | 占地面积: 310平方 | 建筑面积: 1145平方 |








点击文字查看
更多别墅图纸





















本套设计由湖南安筑建筑设计有限公司竭诚提供,各专业资深设计师精心合作完成,设计内容严格遵循国家现行建筑行业规范。图纸不提供免费修改服务,图纸价格为A3纸质档。本公司为您提供所购图纸技术服务。版权所有,禁止复制盗卖!
咨询热线:
15388922757
