
| 【定制设计】广西梁总平屋顶别墅设计图纸A153 | |
| 图纸价格: | ¥定制设计案例展示 |
| 图纸编号: | AZA153 |
| 结构形式: | 砖混 |
| 房屋层数: | 三层别墅设计图 |
| 支付方式: | 货到付款 | 在线支付 | 汇款转账 |
| 请您在下订单前与在线客服确认配送范围。 您在本站订购的图纸,我们客服人员会电话与您联系确认图纸编号、收货信息等, 感谢您对本站的关注,祝您网上购物愉快! |
|
注:图纸为长沙安筑建筑科技有限公司设计,版权所有,受法律保护。图纸设计依照国家建筑行业标准设计,其结构受力安全执行建筑设计国标强制性标准,图纸价格为A3纸质档1份。
| 图纸属性 | |||
| 编号: A153 | 层数: 三层 | 结构形式: 砖混 | 主体造价: 20-30万 |
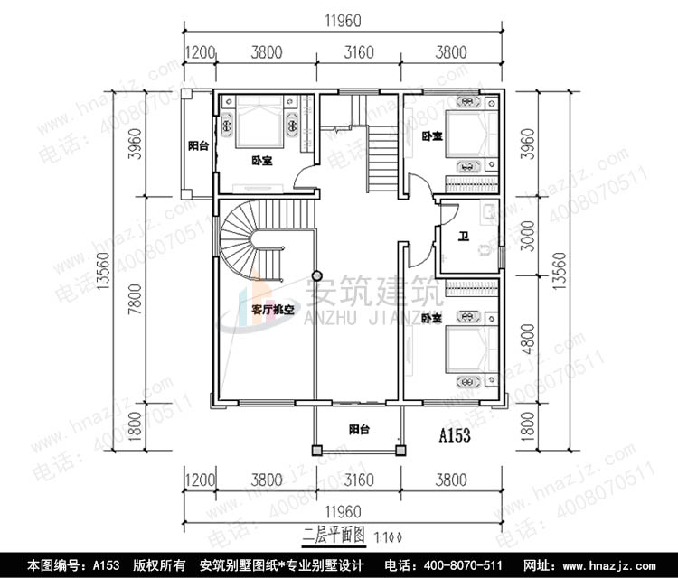
| 开间: 11.9米 | 进深: 13.5米 | 占地面积: 135平方米 | 建筑面积: 333平方米 |
| 图纸内容 | ||||
| 建筑图: | 包含平面图、立面图、剖面图、楼梯大样图、门窗尺寸、节点大样等 | |||
| 结构图: | 包含基础、梁、柱、楼板配筋及大样图等 | |||
| 给排水图: | 包含每层给排水平面图及大样图等 | |||
| 电气图: | 包含每层照明平面图、插座平面图、弱电平面图及系统图等 | |||
| 设计功能 | ||||
| 一层: | 客厅、厨房、餐厅、2卧室、卫生间 | |||
| 二层: | 3卧室、卫生间、2阳台 | |||
| 三层: | 卧室、卫生间、多功能娱乐室、阳台、露台 | |||
| 本套图纸施工图64 张,效果图3张(效果图为彩图,施工图为A3大图) | ||||






点击文字查看
更多别墅图纸





















本套设计由湖南安筑建筑设计有限公司竭诚提供,各专业资深设计师精心合作完成,设计内容严格遵循国家现行建筑行业规范。图纸不提供免费修改服务,图纸价格为A3纸质档。本公司为您提供所购图纸技术服务。版权所有,禁止复制盗卖!
咨询热线:
15388922757
